Shire
Shire Bradenham 13' 8" x 14' 8" Apex Log Cabin - Premium 44mm Cladding Tongue & Groove
Shire Bradenham 13' 8" x 14' 8" Apex Log Cabin - Premium 44mm Cladding Tongue & Groove
* Interest free credit agreements of 12 months or less are not regulated by the Financial Conduct Authority and are not subject to the jurisdiction of the Financial Ombudsman Service.
Finance is provided by Zopa Bank Limited, trading as DivideBuy. Lending is subject to your individual circumstances and satisfactory completion of Zopa Bank Limited’s credit checks. It is important that you do not take on more borrowing than you can afford. If you miss your repayments this may impact your credit rating and make it more difficult to obtain credit in the future. Lending is subject to Zopa Bank Limited’s terms and conditions.
Fast check - won't affect your credit rating.
Couldn't load pickup availability
Product Description
This log cabin is perfect for those who appreciate high quality and durability. A log cabin is a garden building with many uses. With it’s cosy and pleasant appearance, it gives you a space to chill out in the garden with a cup of tea and a book. Alternatively, it can be used as storage space for your garden tools, gardening equipment or garden furniture. The extra large size means you'll have plenty of space for years to come. A must-have product and perfect for those who want to step up their gardening game. Built to last from timber for a classic look and feel, this product comes in a stylish neutral colour scheme, which will look pleasant in your garden.
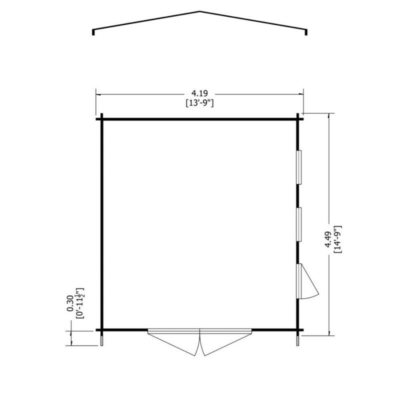
The traditional rectangular shape makes the structure easy to construct and maintain. The apex roof will distribute precipitation evenly and provide headroom in the central walkway. The tongue & groove cladding will provide strong support for the structure of the building and resist the elements. This building comes untreated, giving you the choice of protection. and the 44mm cladding contributes to the building's strength and durability. This building has 3 windows to provide natural light and visibility.
The Bradenham Garage includes large double doors to the front and side opening windows. This product is part of the Bradenham collection.
This log cabin comes pre-assembled for your convenience. This product is proudly made in Great Britain, ensuring you get the best workmanship from the highest quality materials. Made with timber certified sustainable by the Forest Stewardship Council, you are supporting the growth of responsible forest management worldwide by buying this building.
This building comes with a 1 year plus conditional 10-year anti rot guarantee provided it is maintained according to the manufacturer's instructions.
Please note - size 13' 8" x 14' 8" is approximate and based on a bird's eye view of the structure, including the roof.
Product Specifications:
External Ridge Height (cm): 250
External Width (cm): 419
External Depth (cm): 449
Material: Timber
Colour: Neutral
Building Shape: Rectangular
Roof Style: Apex
Cladding Style: Tongue & Groove
Cladding Depth: 44mm
Number of Windows: 3
Building FSC Certified: Yes
Building Installation Available: Yes
Shire established in 1945 manufacture using modern and well equipped with the very latest computer enhanced machinery in the United Kingdom at two sites, in Cambridgeshire and Lincolnshire. The timber is taken
into the in-house planing mill for processing and then forwarded to either the joinery mill or automated component lines before arriving in various assembly areas. Uniquely Shire control all aspects of the manufacturing process and are therefore able to control the quality of materials, components and finished products at each stage.
Offering the most comprehensive range of quality wooden products in the UK and have been producing budget through to high quality garden buildings in their own factories for over 85 years. They offer an inspirational range of products for the garden, bringing the latest style and robust quality direct to your home. Shire have never compromised on quality so you can buy with confidence from a much loved and trusted brand that takes pride in the products they produce.
This product is delivered directly by our approved supplier on a standard delivery service with the utmost care. Deliveries are scheduled once your order has been placed and are to the kerbside or driveway if easily accessible. The customer must be present for delivery. Please note, if you also order products that are not Shire branded they may arrive on a different day due to the products be sent from a different warehouse and courier.
Delivery Restrictions
We are unfortunately unable to accept orders for being with the following post codes: AB, BT, CF, DD, DG, DT6-DT8, EH, EX, FK, G1-G9, GY, HS, IM, IV, JE, KA, KW, KY, LD, LL, ML, PA, PH, PL, PO30-PO41, SA, TA, TD, TQ, TR & ZE.
Shopping Information
0% Finance
0% Finance
Spread the cost with 0% Finance, pay in 4 over 6 weeks with Clearpay or up to 12 months with DivideBuy.
Order By Phone
Order By Phone
Lines are open
- Mon - Thu 9am to 5pm
- Fri 8.45am until 4pm
- Closed Bank Holidays
Call Us 0331 630 0694
Returns & Cancellations
Returns & Cancellations
Online Returns & Cancellations
- 30 Day Returns Policy (exclusions apply)
- Customer pays for return
- View Return & Cancellation policy here
In-store Refunds & Returns
If you change your mind about your purchase
Please return the unused goods, complete with all packaging and the original till receipt, to us within 30 days and we will offer you an exchange or a credit note.
This does not affect your statutory rights, including your right to claim a refund, replacement, repair and/or compensation where the goods are faulty or misdescribed.
Delivery Rates & Zones
Delivery Rates & Zones
We offer delivery to mainland England & Wales. The delivery charge is calculated at the checkout and is dependant upon the physical size and weight of your order and the delivery location.
Weather Forecast
London WEATHERShare

Customer Reviews
-
★★★★★
Saw the Bistro table & chairs online. Purchased with no trouble. Delivered after a few days. Nice items & just what I wanted.
Location : Doncaster
-
★★★★★
Item as described and I was kept informed of expected delivery date which was on time.
Location: Peterborough
-
★★★★☆
Product easy to order, kept me informed of delivery. Delivered on time and left in a safe place. Overall a good customer experience.
Location: Stroud
What We Do
-
Onsite Café
View MenuTake the weight off your feet and relax in one of our onsite cafés serving food and drink made from quality ingredients, available all day long.
-
Reward Card
Sign UpLoyalty gets rewarded! Sign up to our Reward app to receive treats, special discounts and offers throughout the year when you download our app.
-
Grown By Us
Read MoreWe are proud to say that a large selection of our plants have been grown by us and nurtured in our very own nurseries - to be loved by you!
-
Value Our Planet
Read MoreAs a responsible retailer, our mission is to ensure our business and communities work together making changes for a world of difference
-
Events
In-store EventsFind out more about the fun upcoming events we have taking place at Cherry Lane garden centre; including creative workshops, talks, masterclasses and children’s activities.
-
Garden Tots Play Area
Centre FinderOur soft play areas are a great place to let your little ones let off some steam. Why not enjoy the break and unwind with a drink from the cafe? At selected garden centres only.
-
Garden Centre Finder
Visit UsWith garden centres throughout East Anglia, Yorkshire and the Midlands, we represent a new wave of specialist horticultural and leisure retailing.
-
Dog Friendly
Read MoreAs a dog friendly garden centre you are welcome to bring them along too. Well behaved dogs are permitted in-store and in the dog friendly areas of our cafés with pet drinking stations also.
Featured Collection
Garden Dining Sets and Outdoor Furniture Sets
Our outdoor dining sets are perfect for garden get-togethers and provide a long-lasting space to enjoy eating outside. Whether you are catching up with friends or spending quality time with the family, we have garden furniture sets to suit every occasion.
If you're looking for a perfect complement to your outdoor space, look no further than our sets of beautiful and carefully contoured outdoor tables, chairs and accessories. Perk up your patio with a durable wooden outdoor furniture set - offering many happy years of comfortable outdoor living.
-
Outsunny 4-Seater PE Rattan Garden Furniture
Regular price £599.00Regular priceUnit price / per£674.00Sale price £599.00Sale -
Charles Taylor 8 Seat Rectangular Table Combi Scandinavian Redwood Garden Furniture
Regular price £819.00Regular priceUnit price / per£819.00Sale price £819.00 -
Patio 5-Piece PE Rattan Dining Set
Regular price £299.00Regular priceUnit price / per£379.00Sale price £299.00Sale -
Patio Cast Aluminium 5-Piece Dining Table & 4 Chairs Set Outdoor Garden Furniture
Regular price £329.00Regular priceUnit price / per£419.00Sale price £329.00Sale -
Swedish Redwood Garden Furniture Set by Croft - 4 Seats
Regular price £439.00Regular priceUnit price / per£649.00Sale price £439.00Sale
-
Order By Phone
Central Sales Line
Tel: 0331 630 0694
Central Sales Line Hours
Mon - Thu 9am to 5pm
Fri 8.45am until 4pm
Closed Bank Holidays
-
Help Centre
Visit the Cherry Lane Help Centre for useful information and links